苏州市吴中区文化馆录音棚

日期:2016-06-01类型:国家单位 


沪宁线上的高端录音棚






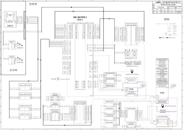
主录音系统


Solid State Logic Matrix 2 模拟调音控制台

Avid HDX 16x16System 音频工作站

Magma Express 3T 供电盒子

Apple Mac Pro电脑

PROMISE egasus2 R4 盘阵

Antares Auto-Tune8 Native 人声音高修正软件

Solid State Logic X-Rack+ 8 Dynamics Modules 压缩模块

TC Eletronic Music6000 环绕声混响

AMS NEVE 1073DPA 双通道话筒放大器

ManleyLab MSLAM 双通道压缩限幅器

DPA 3506A 交响乐弦乐录音话筒

Neumann U87Ai 大振膜录音话筒

ADAM S3X-H 三分频监听音箱

Sony MDR-7506 录音用耳机

AKG K271MKII  录音师专业耳机


编曲系统

Apple Mac Pro工作站

prism sound ADA8 音频转换器

TC Eletronic Reverb 4000立体声混响

Genelec 8250A 两分频有源数字监听音箱

Korg KRONOS 88 合成器

Roland INTEGRA-7 音源

Apple Logic Pro X 编曲软件

Fxpansion BFD Orchestral 管弦打击乐等

VSL DIMENSION STRINGS 维也纳多维弦乐音色等 

East West HOLLYWOOD Orchestral 好莱坞管弦乐音色等